
P R E D A J RODINNÝ DOM V OBCI JABLONICA
P R E D A J RODINNÝ DOM V OBCI JABLONICA

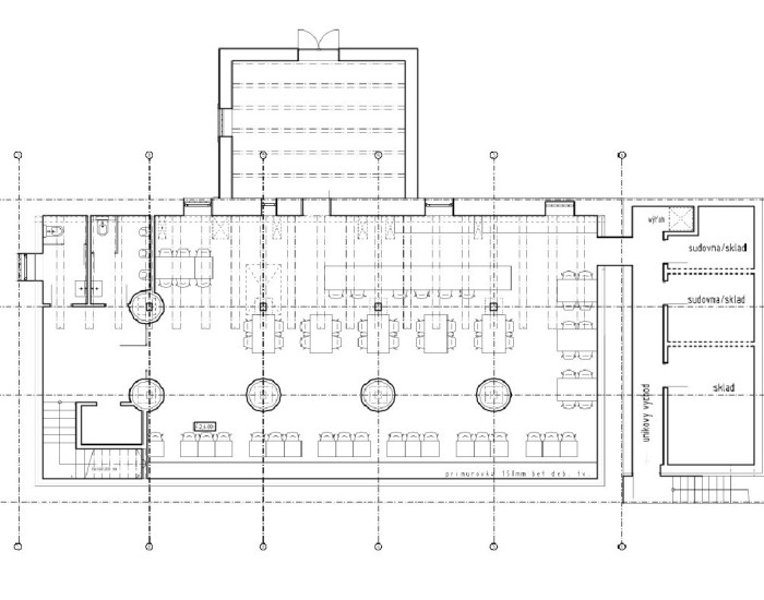
Butterfly-reality ponúka na predaj objekt bývalého mlyna v obci Dolný Štál, okres Dunajská Streda.
OBJEKT:
zastavaná plocha 284 m2
úžitková plocha: 800 m2
4 podlažia – 1 podzemné, 3 nadzemné – každé má 200 m2
rekonštrukcia mlynu na reštauráciu, malý pivovar, piváreň, kongresovú miestnosť, penzión so 6 izbami
tehlová stavba
čiastočná rekonštrukcia – nové rozvody elektriky, každé podlažie oddelené železobetónovými dekami
zachované prvky z pôvodného 100 ročného mlynu
IS: voda, elektrika, plyn, kanalizácia
POZEMOK:
1841 m2
oplotený
betónová plocha – parkovanie pre 25 áut
Dobrá poloha pri hlavnej frekventovanej ceste smerom na Komárno, 10 km termálne kúpalisko v Dunajskej Strede a vo Veľkom Mederi, možnosť cykloturistiky.
Cena: 385.000 EUR + DPH vrátane kompletného realitného a právneho servisu.
Ak vás naša ponuka zaujala, prípadne máte doplňujúce otázky, neváhajte nás kontaktovať.
Mgr. Stanislava Kukuľová
0948 886 044
stanislava.kukulova@butterfly-reality.sk
www.butterfly-reality.sk