
PREDAJ 3 izbový byt, 76,5 m2, Handlová, 29.augusta.

Ulica: | Ivana Bukovčana 16 |
---|---|
Obec: | Bratislava-Devínska Nová Ves |
Okres: | Bratislava IV |
Kraj: | Bratislavský kraj |
Druh: | Byty |
Typ: | Predaj |
Typ bytu: | 2-izbový byt |
REZERVOVANÝ
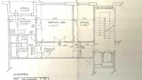
Butterfly reality ponúka na predaj 2-izbový byt s loggiou v tichom prostredí Devínskej Novej Vsi na ulici Ivana Bukovčana 16, 1. poschodie, v kompletne zrekonštruovanom bytovom dome v roku 2022.
BYT:
- Byt 52,22m2 (z toho pivnica 1,74m2 a loggia 3,47m2)
- Poschodie 1/8 s výťahom
- Vymenené stupačky
- Plastové okná
- Sprchový kút
- Zrekonštruovaná a zasklenená loggia
DOM:
- Zateplený
- Nové rozvody (teplá a studená voda, plyn, kanalizácia)
- Zrekonštruované spoločné priestory
- Kamerový systém
- Udržiavaný v čistote
VÝHODY:
- Tiché prostredie v blízkosti prírody
- V blízkosti potraviny (Kraj, Lidl), ihrisko, kostol, lekáreň, zastávka MHD, materská a základná škola
- Plná občianska vybavenosť
- Možnosť ihneď bývať, alebo rekonštrukciou prispôsobiť podľa vlastných predstáv
- Možnosť čerpať hypotekárny úver
- Bez tiarch, kúpou voľný
Cena bytu je 159 000 Eur vrátane provízie a kompletného realitného a právneho servisu. K dispozícii sú Vám zdarma aj naši hypotekárni špecialisti.
Zaujala Vás táto ponuka alebo chcete predať svoju nehnuteľnosť čo najvýhodnejšie? Neváhajte ma kontaktovať:
Ing. Radoslav Danek
+421 908 111 797
radoslav.danek@butterfly-reality.sk
www.butterfly-reality.sk
© COPYRIGHT Butterfly-reality, s.r.o.: Obrázky a texty sú autorským dielom a majetkom realitnej kancelárie Butterfly-reality, s.r.o.